Zivtiņas

Jaunbūve ar zemi
€ 350 000
Zeme
4418 m2
Māja
100 m2
Guļamistabas
3
Kopēt linku
anita@amatciems.lv / laura@amatciems.lv
+371 2 9190561 / +371 2 9176436

Rezervēts!

Māja “Zivtiņas” – šobrīd māja ir būvniecības stadijā, taču pieejama iegādei jau tagad!

Aptuveni trīs mēnešu laikā pēc iegādes māja (100 m²) būs pilnībā pabeigta un gatava uzņemt jaunos saimniekus.

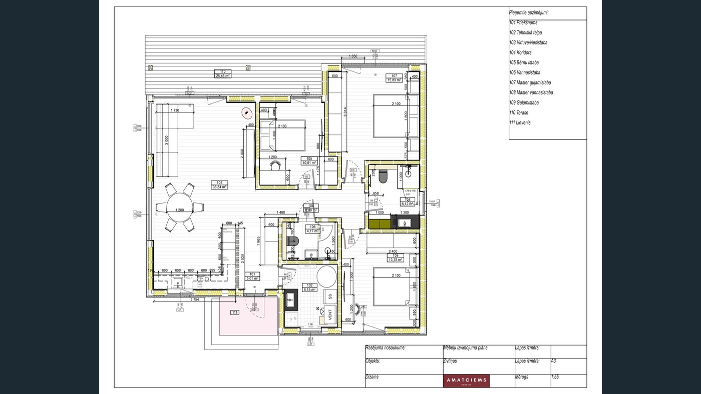
Plānojums:

  • 3 guļamistabas,

  • 2 vannasistabas,

  • tehniskā telpa,

  • viesistaba apvienota ar virtuvi.

Plānojums ir rūpīgi pārdomāts, lai salīdzinoši nelielā platībā nodrošinātu ērtu un funkcionālu ģimenes dzīvi, vienlaikus saglabājot zemākas uzturēšanas izmaksas.

Dizains un apdare:

Mājā apvienotas Amatciema raksturīgās vērtības – koka apdare, dabīgais zāles jumts un harmonija ar dabu – ar mūsdienīgiem, viegliem interjera akcentiem, kas padara māju modernu un mājīgu vienlaikus. Virtuve, dzīvojamā istaba un terase ir īpaši saulaina un gaiša zona, kur baudīt ikdienu ar ģimeni vai draugiem.

Īpašuma novietojums:

Īpašums atrodas klusā meža ielokā, nodrošinot mieru un privātumu. Vienlaikus pagalms ir plašs un saulains – lieliski piemērots atpūtai ārā, bērnu rotaļām vai maltītēm dārzā. No viesistabas un guļamistabas ir tieša izeja uz terasi – ideāla vieta saulrietu baudīšanai.

Komforts un energoefektivitāte:

  • Alpha Innotec zemes–ūdens siltumsūknis ar karstā ūdens sagatavošanas un grīdas dzesēšanas funkciju,

  • rekuperācijas sistēma ar svaiga gaisa apmaiņu.

Tas nozīmē – zemas uzturēšanas izmaksas un patīkams klimats visos gadalaikos.

Cenā iekļauts:

  • Pilnībā pabeigta māja ar iekšējo apdari un pievilktām komunikācijām
  • Zemes gabals 4418 m² platībā

 

Šī ir lieliska iespēja iegūt mājīgu, funkcionālu un dabas ieskautu māju Amatciemā – vietā, kur apvienojas klusums, komforts un mūsdienīga dzīves kvalitāte.

Zeme ar māju pārdošanā
Zeme pārdošanā
Viesnīca / Īres māja
Stāvvieta
Video novērošana
Vārtu barjera
Gājēju taka
Asfalts
Zemes ceļš
Zivtiņas
Jaunbūve ar zemi
€ 350 000
Zeme
4418 m2
Māja
100 m 2